一、項目背景:
某制冷設備能源科技有限公司成立于2022年,是一家專注于工業冷卻領域,為新能源、醫療影像、激光技術和儲能等工業應用提供集技術方案和咨詢、產品設計、生產、銷售、項目實施、現場服務和持續性改進和創新為一體的溫度和流體管理的全解決方案提供。
主要產品:

二、項目現狀與要求
01
項目現狀
1. 整機裝配工位叉車運送,工序間傳送不方便
2. 安裝水泵,壓縮機等重量部件無輔助工裝器具,員工作業強度大
3. 工序布局集群式布置,未按工藝流程布局,散亂。導致搬運路線較亂,距離遠
4. 生產作業方式不合理,導致作業效率低。
5. 現工廠生產能力約1200臺/年。
02
布局要求
1、要減少搬運浪費
2、要降低員工作業強度
3、要降低工序間的傳遞難度
4、要提高生產作業的整體效率
5、規劃要能靈活的應對不同階段的生產能力(總規劃生產能力6000臺/年,2年內3000臺/年)
三、項目開展
1
制定里程牌計劃并與客戶確定計劃

2
項目前期調查
工藝流程

PQ分析:

各工序工時測算及工位計算:

u 電氣裝配接線工位可2人同時一臺機,對面作業,可節省作業空間,年產量達5000臺時,最少排10個工位,年產量達3300臺時,最少排6個工位,
u 整機裝配工位可2人同時一臺機,對面作業,可節省作業空間,年產量達5000臺時,最少排24個工位,年產量達3300臺時,最少排位15個工位,
u 5000臺/年,需要生產人力104人,3300臺/年,需要生產人力73人。
倉庫庫位需求測算:


物流分析:


3
問題改善方案確定
管材貨架改善

切割臺改善:

電控箱作業臺改善:

整裝線改善:

整裝大部件作業強度改善:

管件測試產能增加測試臺改善:

線邊小件貨架改善:

4
布局規劃設計:
功能區域確定:

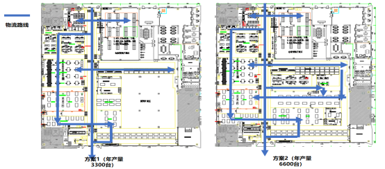
主物流規劃:

參觀路線規劃:

車間詳細規劃:

物流規劃:

四、項目取得的主要效果
1、整機組裝采用無動力滾筒裝配線,提高傳遞效率與降低作業強度
2、重量部件采用KBK行吊,降低作業強度,提高作業效率
3、按工藝流程布局,減少搬運距離,結合生產線改善,減少了搬運的頻次
4、電控箱改善作業臺及改變作業方式,估算效率可升10%-15%。
5、車間按2組線方式布局,在訂單變化時可靈活按需開線,減少能耗
作業臺規劃可四周作業,可按生產需求,靈活調配作業人員,提高生產柔性
工程機械集團公司精益管理戰略案例 在項目落地過程中,博革咨詢按照系統診斷、試點推行、樹立標桿、快速復制,IT固化、系統評價、能力內化等七個步驟對集團公司下屬的17個子公司進行推進。 /news/4878.html
某線束工廠裝配車間連續流生產線規劃案例分享 生產線的升級解決了孤島式批量生產的方式,實現了連續流生產模式,在線庫存金額從60萬降為10萬,在制品從50000件降至5000件。車間在建設連續流生產方式時,遵循精益生產思想,通過連續流生產 /news/4876.html
某工程機械工廠裝配車間節拍式流動化生產線設計案例分享 生產線的升級解決了孤島式批量生產的方式,實現了一線流生產模式,庫存金額從50萬降為10萬,在制品從1700件降至200件。車間在建設一個流生產方式時,遵循精益生產思想,還通過按節拍生產、連續 /news/4874.html

.png)
.png)
.png)